工商网监人防工程

安徽省民防工程设备有限公司

欢迎光临安徽省民防工程设备有限公司!
安徽省民防工程设备有限公司
·关于我们
·联系方式
 
地址:安徽省合肥市徽州大道628#(经营)
      合肥肥东新城开发区(厂区)
电话:0551-64668018, 64669080
传真:0551-64669080
业务邮箱:ahmfgs@ahmfgs.com
管理员邮箱:admin@ahmfgs.com
邮编:230022
·友情链接
 
安徽人防办主站
马鞍山人防办
安庆市人防办
亳州市人防办
阜阳市人防办
宿州市人防办
六安市人防办
池州市人防办
铜陵市人防办
霍山人民防空办公室
巢湖市人防办 
合肥市人防办
滁州市人防办
蚌埠市人防办
淮北市人防办
淮南市人防办
芜湖市人防办
黄山市人防办
宣城市人防办
·产品中心>>产品详细 返回上一页
钢结构单扇防护密闭门(GFM)/

产品说明:
 

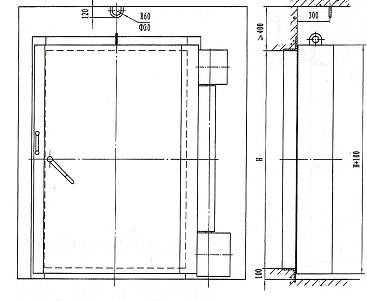
此类门的特点是具有固定门槛,门扇为梁板结构。

1 、外形尺寸图:


 

 

 

2 、部分外形尺寸表 (mm) :

型号/参数 门孔宽B 门孔高H 门扇厚δ B1 H1 C1 C2 d1 d2
GFM0716(6) 700 1600 112 900 1646 250 450 30 300
GFM0818(6) 800 1800 112 1000 1846 250 400 30 300
GFM0820(6) 800 2000 112 1000 2046 250 400 30 300
GFM0920(6) 900 2000 112 1100 2046 250 400 30 300
GFM1020(6) 1000 2000 112 1200 2046 250 400 30 300
GFM1220(6) 1200 2000 112 1200 2046 250 400 30 300
GFM1320(6) 1300 2000 132 1500 2046 250 400 30 300
GFM1520(6) 1500 2000 132 1700 2123 250 400 50 400
GFM2020(6) 2000 2000 156 2240 2240 300 500 150 400

 
My JSP 'footer.jsp' starting page
版权所有 Copyright(C)2010-2016 安徽省民防工程设备有限公司

电话:86-551-64669080传真:86-551-64669080

皖ICP备19018692号-1